276A3222 - Copy.JPG

Beach House

In Florida, the residence is designed while I was Interning at PPDS. Together with another intern, we put together the cd set, plus myself the ff&e package under the supervision of the principal. 

 

Beach House, Florida, 2016

3800 sq ft
1.2 million

Architecture Intern

30%    Cds - Exterior Envelope, Plans, Sections and Elevation, Detail
100% FF&E 

The house is located right on the beautiful sandy Florida beach. Design consideration includes hurricane resistance envelope, light specs for protection for sea turtle habitat restriction.  Concrete structure, with alternate wood vaulted ceiling structure for weight consideration.

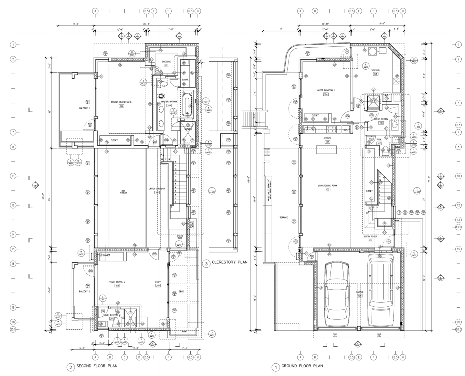
*The drawings shown below are part of the cd set, prepared and followed through under the supervision of the principal by Wan-Jen.  Due to copyright and respect of the firm, only complete paper set can be provided in person and for potential employment only. See project on PPDS website, click here

276A3234copy.jpg
276A3659.JPG
276A3219 - Copy.JPG
276A3708.JPG
276A3704.JPG
site plan
276A3655.JPG

Modeling

render 86.jpg
render 104.jpg
1 Section.jpg

Cd sample work

Floor Plan

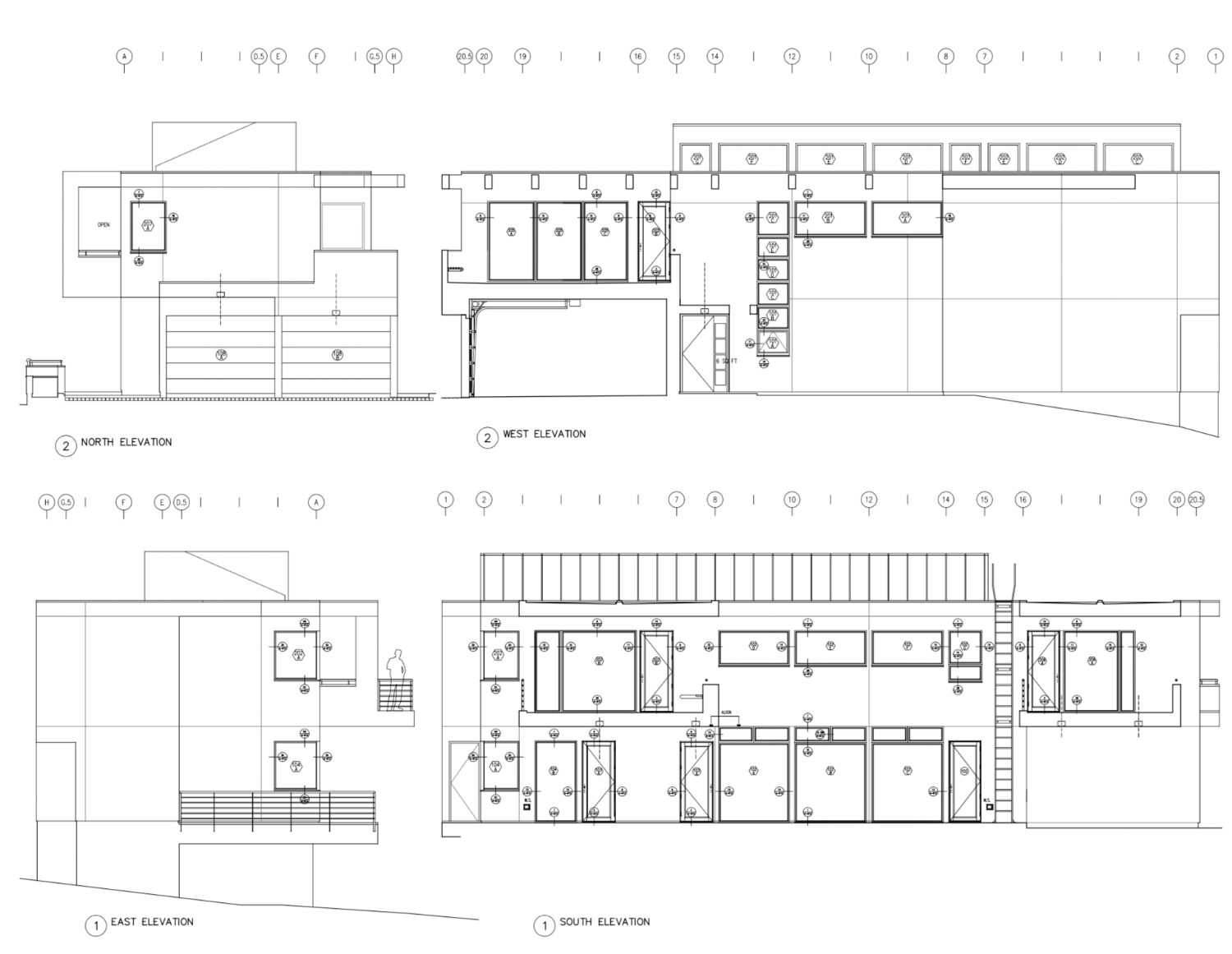
Elevation- Opening Diagram

Elevation- Opening Diagram

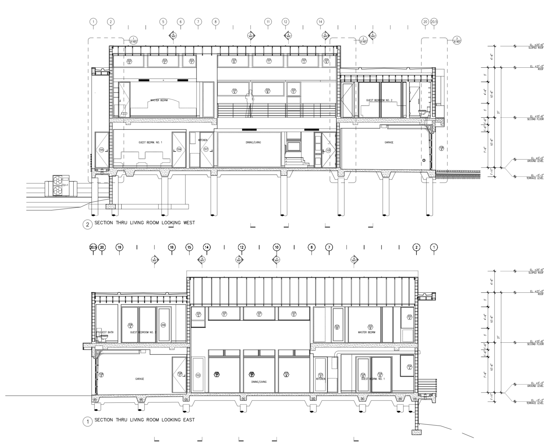
Longitudinal Sections

Longitudinal Sections

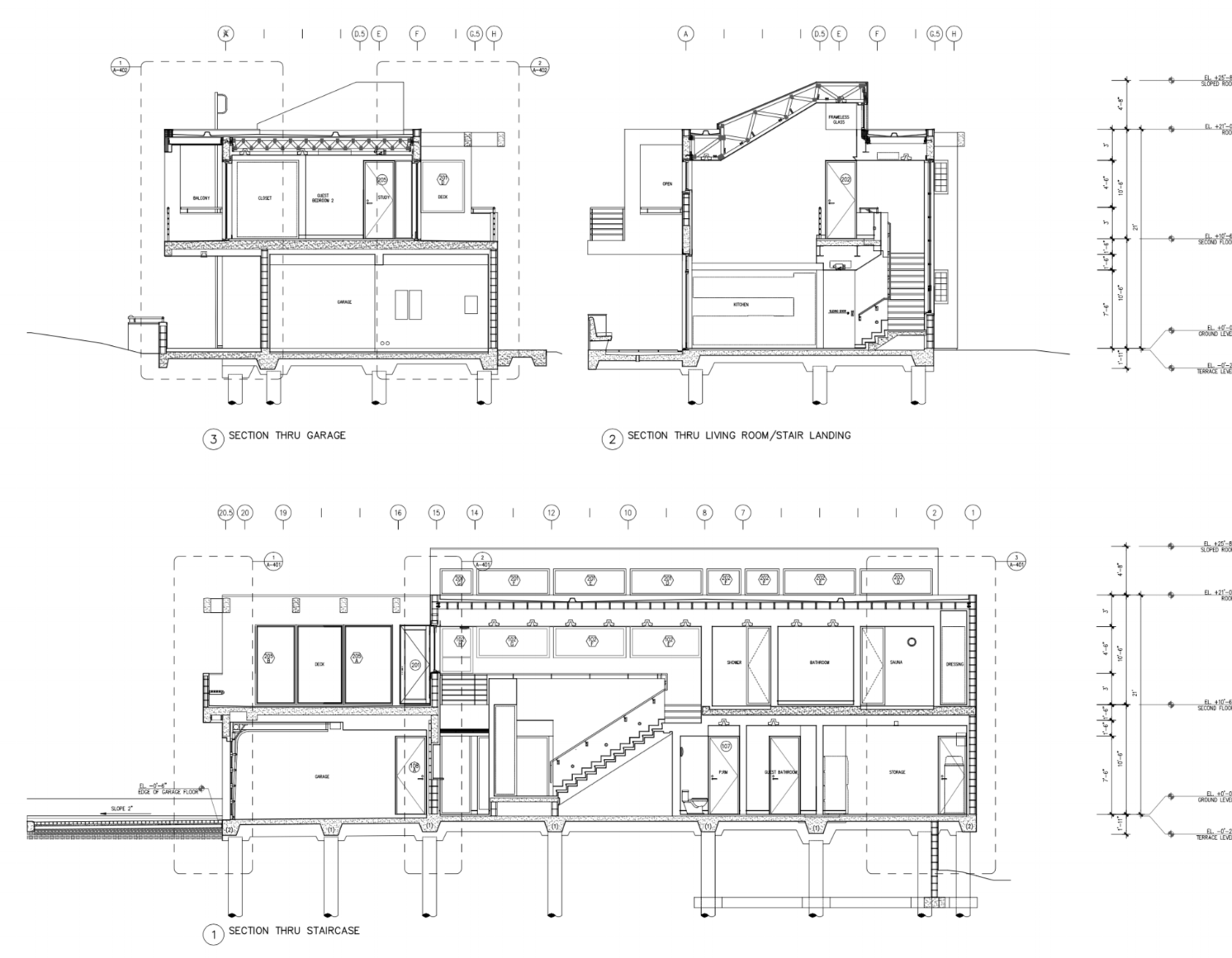
Transverse Section

Transverse Section

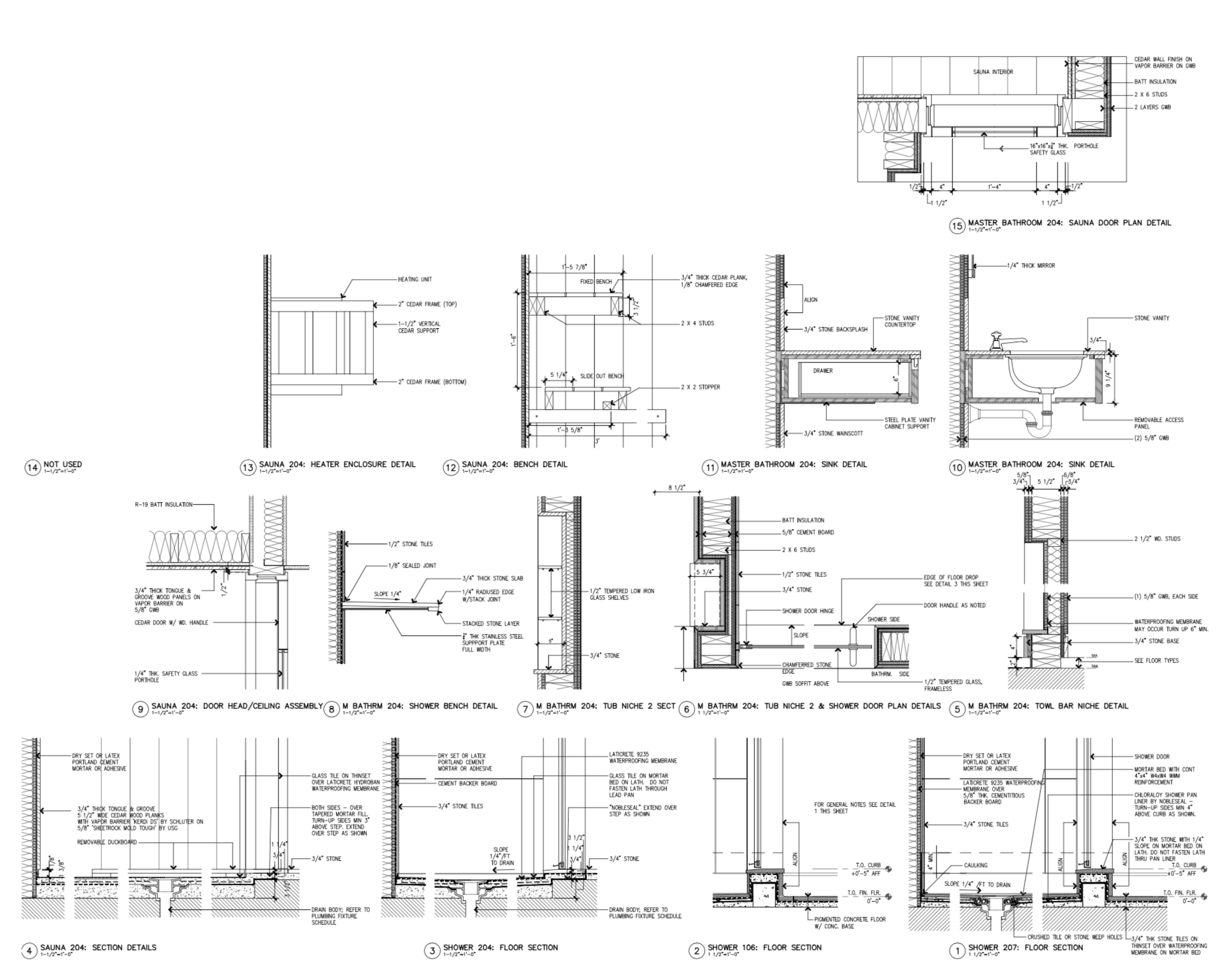
Master Bathroom

Master Bathroom

Bathroom Detail

Bathroom Detail

Wall Section

Wall Section

Wall Section

Wall Section

Roof Detail

Guardrail Railing Detail

Guardrail Railing Detail

Window Schedule

Window Schedule

Door Schedule

Door Schedule

Datum and Grid Alignment for Openings