Screen Shot 2018-02-19 at 1.49.07 PM.png

Dermatology

DERMATOLOGY, New York, 2016

3000 sq ft
1.3 million

Architecture Assistant, PPDS

  70% Proposal
  50% PreDesign
  50% SD
  50% DD
  50% CDS
  50% DOB
  80% FF&E
  75% BID
  20% CA

The project is to relocate and expand the existing Dermatology of a known Dermatologist by 3 times. The plan is separated into three group each with individual nurse station and exam rooms. The project dealt with asbestos abatement, coordination with lighting, mechanical consultant. The finish is to have a residential scale and comfort to allow for a restful and calm experience. The office is complete in March 2017.

Wan Jen worked with the Principal with project proposal, standardize payment and design schedule, and contract document. After contract was awarded, she worked under the Principal and Project Architect to prepare drawings and bid documents, coordinate with consultant with specs and drawings.  She was responsible for the FF&E package for bidding and followed through till construction admin.  During construction phase she took periodic site visits. 

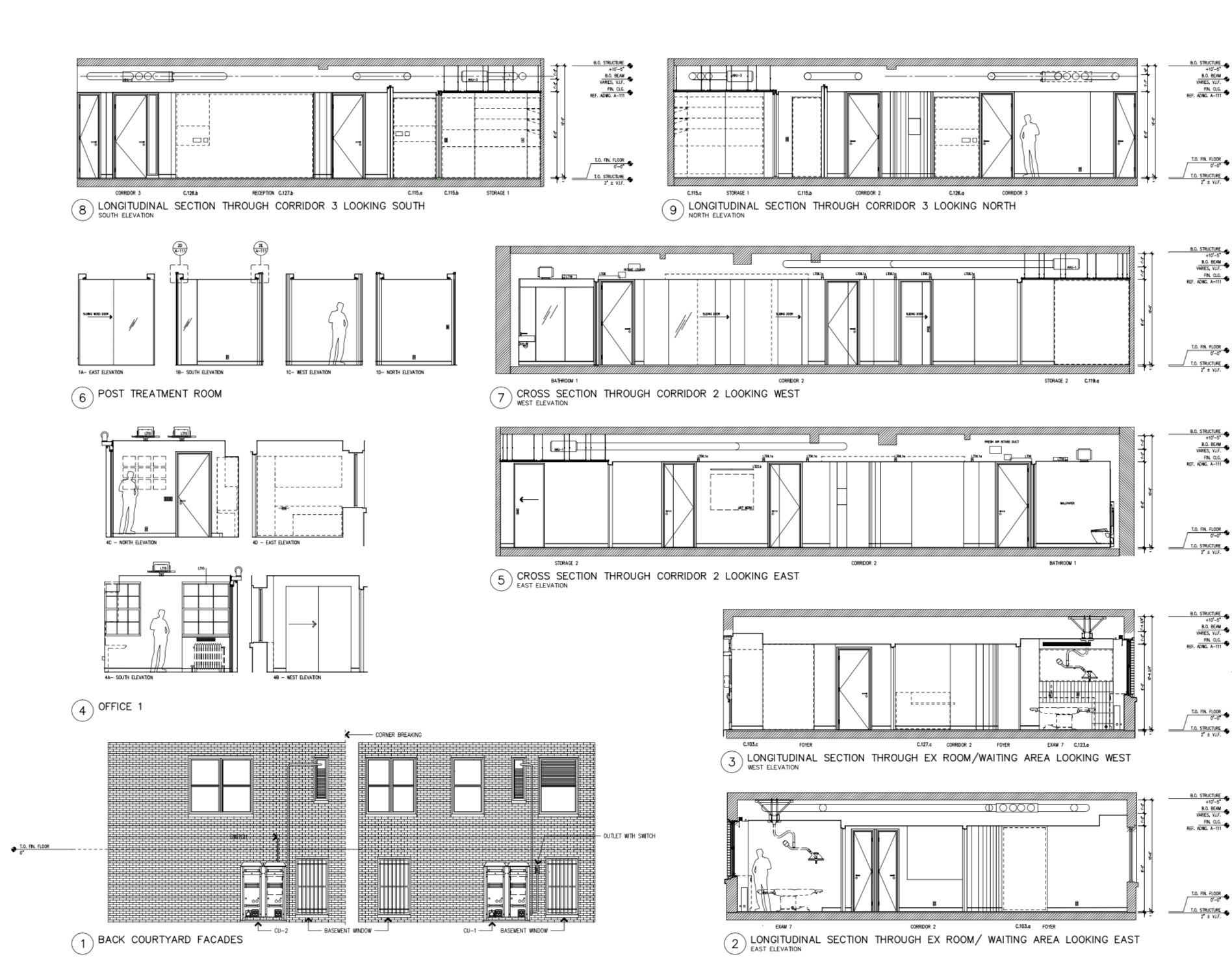
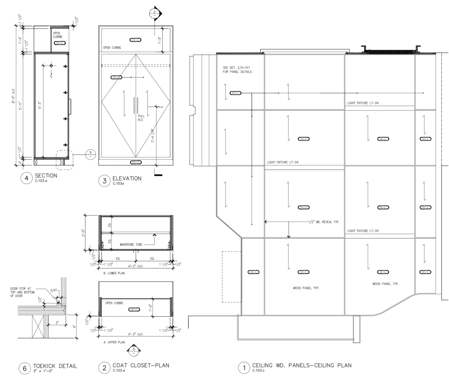
*The drawings shown below are part of the cd set, prepared and followed through under the supervision of the principal by Wan-Jen.  Rendering done by others, marked up and coordinated by Wan-Jen. Due to copyright and respect of the firm, only complete paper set can be provided in person and for potential employment only. 

Reception

Reception

Reception

Reception

Corridor looking at Post Treatment Room

Corridor looking at Post Treatment Room

Reception

Reception

Toilet Room

Toilet Room

Exam Room

Exam Room

Doctors Office

Doctors Office

Account Desk

Account Desk

 

SD - Material Board

material board-02.jpg
material board-01.jpg
 

Project Administration

Design Schedule

Design Schedule

Construction Schedule

Construction Schedule

Old Dermatology VS New Space Comparison

Old Dermatology VS New Space Comparison

Existing Plan

Existing Plan

Air Flow Study

Air Flow Study

Model Study 

Model Study 

Model Study

Model Study

CD

Floor Plan  Power Communication

Floor Plan  Power Communication

Screen Shot 2018-02-19 at 1.56.11 PM.png

Section

Screen Shot 2018-02-19 at 2.11.37 PM.png
Screen Shot 2018-02-19 at 2.12.00 PM.png
Screen Shot 2018-02-19 at 2.12.18 PM.png
Screen Shot 2018-02-19 at 2.12.51 PM.png
Screen Shot 2018-02-19 at 2.13.27 PM.png
 

FF&E

Entry Ceiling Wood Panel

Entry Ceiling Wood Panel

Reception Desk

Reception Desk

Exam Room

Exam Room

Office

Office

Pantry

Pantry